Проблема пандусов и санузлов: есть ли в Северодонецке доступные заведения для людей с инвалидностью

северодонецк кафе пандус_03
Фото: Восточный Вариант

Доступность кафе и ресторанов подразумевает комфортное посещение их всеми людьми, включая маломобильные группы населения. Это возможно при наличии пандусов и специально оборудованных туалетов. Узнали, как обстоят дела на Луганщине

По данным главы областной Ассоциации общественных организаций людей с инвалидностью Николая Надуличного, в Северодонецке на сегодняшний день зарегистрировано более 270 человек, которые передвигаются на колясках. Однако чувствуют ли они себя комфортно в своем городе?

Восточный вариант провел исследование, чтобы узнать, готовы ли заведения Северодонецка принимать людей с инвалидностью. 

В рамках журналистского исследования, были проверены 29 заведений Северодонецка. 

А именно: "Восток", "Гио Хинкали Хачапури", "Грузия", "Корчма", "Малахит", "Наше кафе", "Паштет", "Пивной фанат", "Привал", "Сальвадор", "Скаут", "Сулико", "Соль. Остальное мясо", "Шале", "Шарпей", "Шашлычный двор", "Эдем", "Asia Mix", "Beerloga", "Detroit", "Duke", "Espresso bar Kava", "Lotus", "Lviv Croissants", "Montana", "The Puzo Pub", "PoollyDonuts", "Fondu", "Forrest".

Рассказываем, какая ситуация, что не так и что давно пора менять.

(Не)доступный санузел 

Самой большой проблемой оказалось наличие доступного санузла.

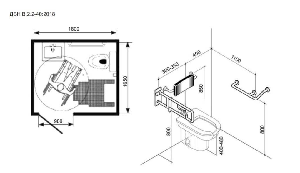
Согласно нормам ГСН В.2.2-40:2018 универсальная кабина туалета общего пользования должна иметь размеры в плане не меньше чем, м: ширина — 1,65, глубина — 1,8. В кабине рядом с унитазом необходимо предусмотреть пространство для кресла-коляски.

В универсальной кабине, предусмотренной для пользования всеми категориями граждан, в том числе лицам с инвалидностью, нужно предусмотреть установку поручней, штанг, поворотных или откидных сидений.

Раковина умывальника крепится так, чтобы внизу было пространство 0,7 м, а верхняя ее плоскость была на высоте 0,8-0,85 м от пола.

Двери шириной 0,9 м открываются наружу. 

северодонецк кафе пандус_04
Обустройство универсальной кабины. План, общий вид

В кафе, где есть кабинки, ширина дверей не позволяет коляске заехать. Отдельной кабинки для людей с инвалидностью нет. 

90% из 29 опрашиваемых заведений были не готовы к вопросу "Есть ли у Вас туалет для людей с инвалидностью?". Сотрудники, с которыми общались наши журналисты, были явно удивлены.

На вопрос "Почему нет доступного санузла?" последовали следующие ответы: "Да как-то не задумывались", "Не позволяет планировка".

Чтобы узнать экспертное мнение, “Восточный Вариант” обратился к главе областной Ассоциации общественных организаций людей с инвалидностью Николаю Надуличному.

“Доступное искусство”: на Луганщине впервые состоялся спектакль для людей с нарушением слуха

"К сожалению, в кафе и ресторанах Северодонецка доступных туалетов нет. У владельцев находятся на это много аргументов: мы арендуем помещение, нет возможности перепланировать, мало места в санузле. Нет необходимости что-то выдумывать самому. Нужно просто пригласить специалиста, который проконсультирует и подскажет по планировке и установке санузлов и пандусов. Для этого можно обратиться к нам. Мы посодействуем. Главное, чтобы было желание что-то изменить. Мы за то, чтобы безбарьерность развивалась", — говорит Николай.

По результатам проверки Северодонецк пока не может похвастаться заведениями, где был бы специально оборудованный туалет. На данный момент кафе и рестораны разделились на те, где есть возможность въезда в санузел пользователям коляски и где такой возможности нет. 

В ближайшее время оборудовать доступный туалет для маломобильных групп населения пообещали владельцы "The Puzo Pub".

Проблемы пандусов 

К пандусам для людей с инвалидностью есть определенные требования. Среди таких требований — определенная ширина и уклон конструкции, а также пандус должен оборудоваться перилами установленной формы. Эти и другие важные моменты регламентируются СНиП — строительными нормами и правилами.

Сейчас почти 90% пандусов не соответствует норме.

“Не нужно водить нас за ручку!”. Какой помощи ждут люди с инвалидностью и почему это нужно всем нам

"Это нормальное и здравое мышление, когда при строительстве своего заведения автоматически по нормам ГСН (Государственные Строительные Нормы — ред.), его владелец учитывает, что это должно быть безбарьерное пространство для разных групп населения. Я уже 2 года даю рекомендации заведениям. И, честно сказать, уже устал. Ничего не происходит.  Я не знаю сколько должно пройти лет, чтобы это случилось, чтобы бизнес тоже понял. Когда все начнут честно платить налоги, тогда будут изменения", — сетует Николай.

По данным Госстата в Украине насчитывается около 3 млн лиц с инвалидностью, из которых 80% являются работоспособными и активными. Но реализация их прав невозможна в связи с отсутствием доступности в общественных заведениях и жилых зданиях, на улицах, в транспорте и другой инфраструктуре. 

"Есть такая проблема. У людей с инвалидностью, которые сидят дома на пособии, нет стимула искать работу, потому что им даже негде потратить эти деньги. Если в европейских странах все приспособлено под разные группы населения, то здесь человек с инвалидностью даже в магазин и в кафе не может нормально попасть", — дополняет Николай. 

В результате проверки Восточный вариант выяснил, что из 29 заведений, пандусы есть лишь у трех: 

"Наше кафе"

северодонецк кафе пандус_03
"Наше кафе". Фото "Восточный вариант"

"Lviv croissants"

северодонецк кафе пандус_05
"Lviv croissants". Фото "Восточный вариант"

"The Puzo Pub" 

северодонецк кафе пандус_03
"ThePuzoPub". Фото "Восточный вариант"

Но все ли пандусы отвечают нормам ГСН? Согласно ГСН В.2.2-40:2018 максимальная высота одного подъема (марша) пандуса не должна превышать 0,8 м при уклоне не более 8%. При перепаде высот пола на путях движения 0,2 м и менее допускается увеличивать уклон пандуса до 10 %.

северодонецк кафе пандус

При отсутствии ступеней в пандусе необходимости нет. И такие кафе и рестораны в Северодонецке также есть. Но отсутствие санузла им не дает статус "Доступное заведение".  

"Владелец вам перезвонит"

“Восточному Варианту” не удалось пообщаться с владельцами всех заведений. В большинстве случаев они отсутствовали, а на вопросы отвечали официанты, бармены или администраторы. Те, кто снимал с себя ответственность отвечать на вопросы, записывали номер нашего корреспондента. В течение недели так никто и не перезвонил.

Владелец заведения может ответить на вопрос "Планируются ли в ближайшем будущем изменения?". Но, чтобы дать ответ о наличии пандуса и туалета, хозяин рядом не нужен.

— У вас есть клиенты с инвалидностью?

— Они к нам не ходят.

— Вы не связываете отсутствие таких клиентов с отсутствием пандусов?

— Ну... Они могут на летней отдохнуть.

— Т.е. в Вашем заведении люди с инвалидностью могут отдыхать только в летний сезон?

— Получается, да.

Надуличний

"Случилась беда, человек попал в аварию, получил ранения на войне. Нужно иметь совесть и сделать вход доступным для людей, для ветеранов, чтобы они могли посетить.

Тем более, если у владельца будет удобный доступный санузел и, при необходимости, пандус, это только привлечет большее количество клиентов. Это даст толчок  бизнесу", — говорит Николай.

“Мы поможем занести

— Как человек на коляске может попасть к вам в заведение?

— Для нас это не является проблемой, мы всегда готовы выбежать на улицу и помочь человеку попасть в наше кафе.

Желание прийти на помощь и своими силами поднять человека — признак доброты и самоотдачи. Но должны ли официанты, тем более, если речь идет о  женщинах и девушках, решать такие вопросы с помощью своего здоровья? И что при этом чувствуют посетители с инвалидностью?

"Я просто хочу отдохнуть и спокойно посетить кафе, как остальные. Я хочу жить, как обычный человек. Мне не нужно сострадание. Меня не надо жалеть. Просто сделайте удобства, чтобы я сам мог въезжать", — делится с нами житель Северодонецка с инвалидностью на правах анонимности.

Стратегия безбарьерности 

Национальная стратегия — это первый в Украине комплексный документ, который предусматривает создание безбарьерного пространства во всех сферах жизни и для всех общественных групп, в том числе для людей с инвалидностью, пожилых людей, молодежи, женщин, родителей маленьких детей и детей с инвалидностью.

Во исполнение указа Президента Украины и в рамках инициативы первой леди Елены Зеленской «Без барьеров» 14.04.2021 Кабинет Министров утвердил Национальную стратегию по созданию безбарьерного пространства в Украине до 2030 года.

"Мы верим в стратегию безбарьерности и в то, что она изменит нынешнее положение и даст понимание людям. В стратегии безбарьерности предусмотрена ответственность, но на частный бизнес, к сожалению, она пока не распространена. Потому пока этого нет, остается надеяться только на инициативность и совесть владельцев заведений. Мы будем лоббировать, будем дальше двигаться, чтобы такая ответственность была", — говорит Николай.

Читайте также

Доступная для всех реинтеграция: какие изменения нужны людям с инвалидностью на Донбассе 

Здоровье и безопасность. Как получить услуги врача и не попасть в беду

"Восстановила себя сама": как северодончанка победила серьезный диагноз и начала помогать другим 

О
Subscription: Plane Paper

Підписуйтеся на розсилку

Популярні новини

Підписуйтеся на розсилку